Reliable LV MV Switchgear with Advanced Protection

Switchgear is a complete set of equipment used for power distribution, control and protection in power systems, featuring high reliability, modular design and intelligent monitoring, widely used in substations, industrial plants and commercial buildings.

Product Description:

This switchgear series adopts advanced design concepts and manufacturing processes, integrating circuit breakers, disconnectors, protection devices and other electrical components to achieve reliable control and protection of power systems. Compliant with international standards, suitable for various harsh industrial environments.

Product Parameter (Specification)

 

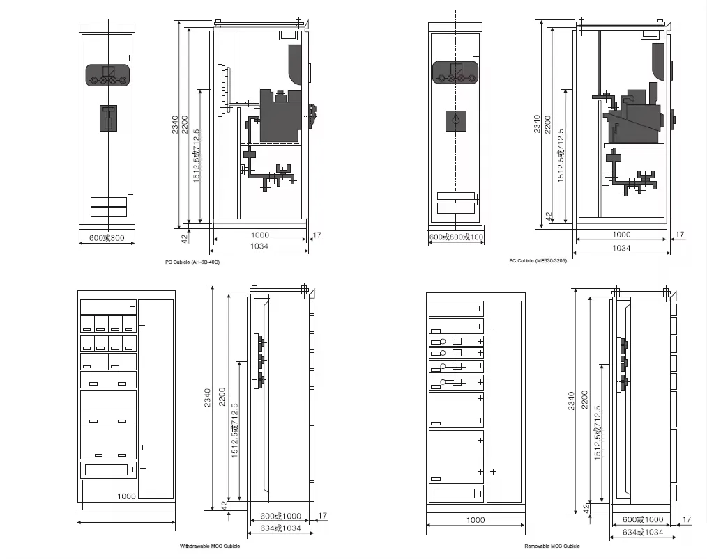
  1. Fuse chamber
  2. Capacitive voltage indicator
  3. Short Circuit Ground Fault Indicator (Accessory)
  4. Pressure indicator
  5. Standard with serial number
  6. Analog circuit diagram
  7. Fuse fuse indicator
  8. Padlock device on the panel
  9. Cable room
  10. RTU installation room
  11. Key lock (accessory)
  12. Circuit breaker operation hole
  13. Load switch operation hole
  14. Grounding switch operation hole
  15. Isolation switch operation hole
  16. Open button
  17. Closing button

Parameter list
project unit data
Rated voltage kV 3.6、7.2、12
rated frequency Hz 50
Circuit breaker rated current A 630、1250、1600、2000、2500、3150
Switchgear Rated Current A 630、1250、1600、2000、2500、3150
Rated short-time withstand current (4S) kA 20、25、31.5、40
Rated peak withstand current (peak) kA 50、63、80、100
Rated short-circuit breaking current kA 20、25、31.5、40
Rated short-circuit making current (peak value) kA 50、63、80、100
Rated insulation level
1min power frequency withstand voltage
between poles, pole-to-ground kV 24、32、42
between fractures kV 24、32、42
lightning shock
Withstand voltage (peak)
Between poles, between poles kV 40、60、75
Fracture kV 46、70、85
degree of protection The shell is IP4X, and the door of the compartment and circuit breaker room is IP2X when it is opened.


Product features:

  • High reliability design – Using high-quality components and strict production process
  • Intelligent monitoring – Optional online monitoring system for real-time status
  • Modular structure – Easy installation and maintenance, good scalability
  • Safety protection – Complete mechanical interlock and protection devices

Packaging:

Normal package, Packed in Roll, Plastic film winding, Standard export carton, Or based on your demands.

 

 

newsletter

Looking Forward To Your Contact With Us

Let's have a chat